Pampering Extra Catering Extra All Hen Extras
Floor Plans
Rooms
-
Meadows Drift - Bedroom 1 has a king size bed and an ensuite shower room Bedroom 1
This room is accessed from the first staircase and has a king size bed. There is an ensuite shower room.
Sleeps 2. -
Meadows Drift - Bedroom 2 sleeps 3 in a super king and a single bed, or in 3 singles Bedroom 2
This room is accessed via the first staircase and can have beds arranged as a super king and a single, or as three singles. There’s an ensuite bathroom with a bath and overhead shower.
Sleeps 3. -
Meadows Drift - Bedroom 3 has a king size bed and an ensuite shower room Bedroom 3
This is accessed via the second staircase and has a king size bed and an ensuite shower room.
Sleeps 2. -
Meadows Drift - Bedroom 4 can sleep 3 in a super king and a single bed, or in 3 singles Bedroom 4
This is accessed from the second staircase and has beds that can be arranged as a super king and a single, or as 3 singles. Right next door there’s a bathroom with a bath and overhead shower.
Sleeps 3. -
Meadows Drift - Bedroom 5 has a king size bed and an ensuite shower room Bedroom 5
This is accessed from the third staircase and has a king size bed. It has an ensuite shower room.
Sleeps 2. -
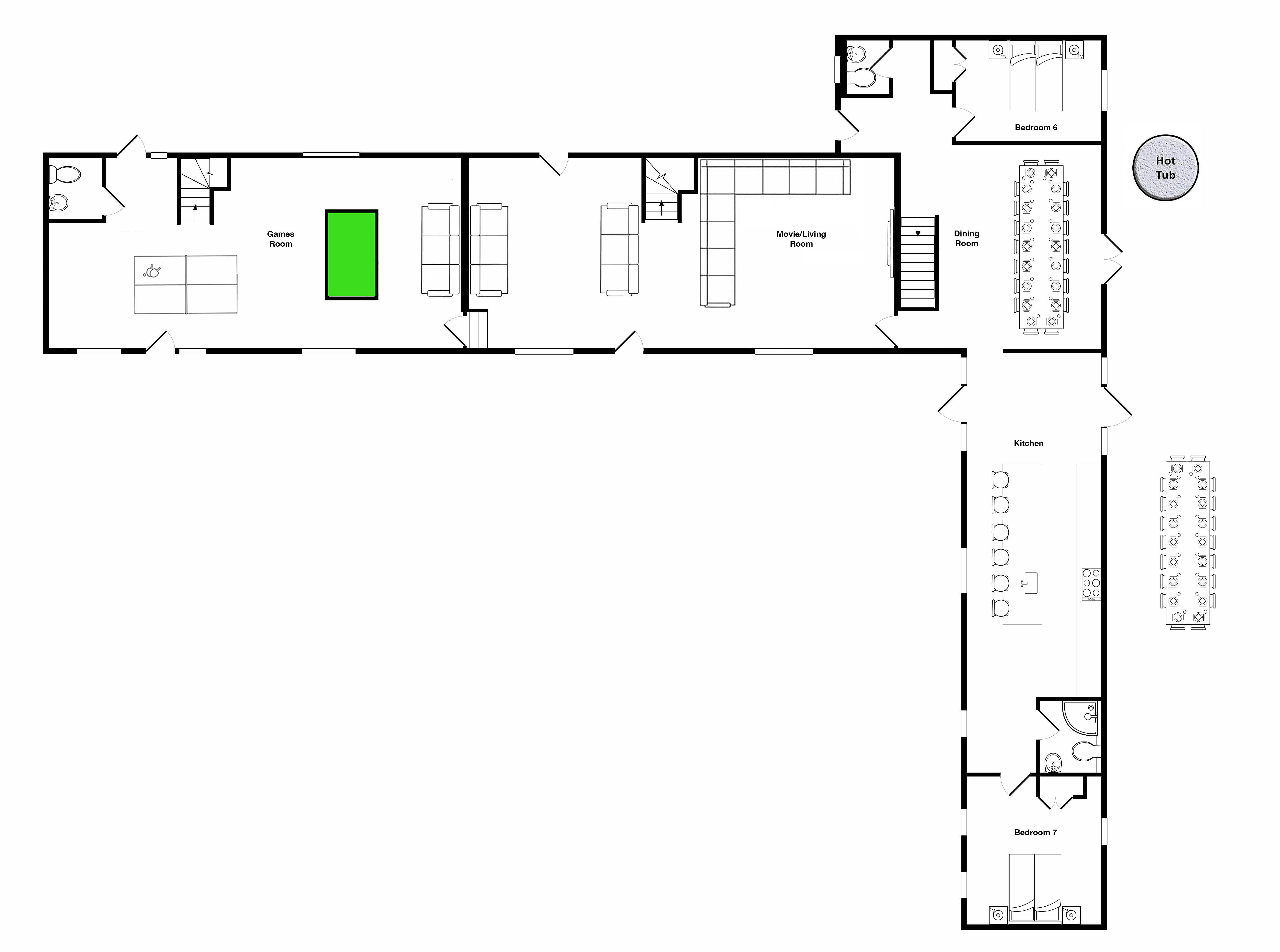
Meadows Drift - Bedroom 6 can be a super king or twin room and is on the ground floor Bedroom 6
This room is on the ground floor and has zip and link beds (super king or twin). Just across the lobby there’s a WC.
Sleeps 2. -
Meadows Drift - Bedroom 7 can be a super king or twin room and is on the ground floor Bedroom 7
This room is on the ground floor and has zip and link beds (super king or twin). Next to it there’s a shower room.
Sleeps 2. -
Meadows Drift - Throughout the house original features and modern interiors merge to perfection Kitchen
If requested, highchairs wil be left in the kitchen for you.
-
Meadows Drift - For large group holidays in the country throughout the year Equipment
This property owner offers the following items. If required these can be selected while doing your bed configurations within your booking.
2 x Highchairs
2 x Travel Cots (age 2 yrs and under)