Pampering Extra Catering Extra All Hen Extras
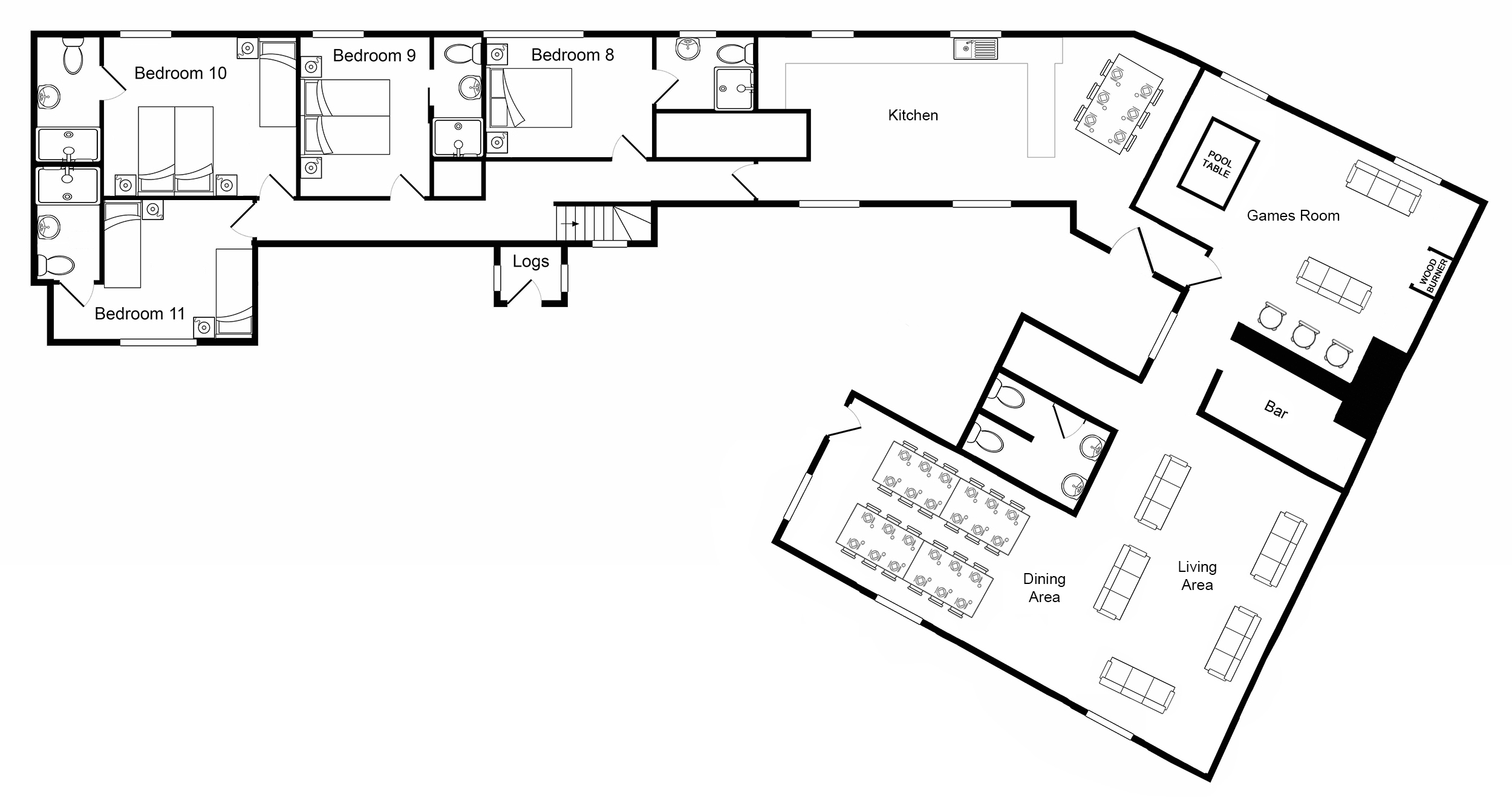
Floor Plans
Rooms
-
The Plough - Bedroom 1: Zip and link beds mean you can have a superking or twin beds Bedroom 1
This is a first floor room with zip and link beds (super king or twin) and adult size bunk beds, so it makes a great family room. There's an ensuite bathroom with a bath and overhead shower.
Sleeps 4. -
The Plough - Bedroom 2 has zip and link beds and room for an extra guest bed (extra charge) Bedroom 2
This is a first floor room with zip and link beds (super king or twin) and an ensuite shower room.
Optional: 1 extra guest bed (extra charge - see Extras)
Sleeps 2+1. -
The Plough - Bedroom 3: Contemporary style that's bang on trend Bedroom 3
This room is on the first floor and has a double bed and an ensuite shower room.
Sleeps 2. -
The Plough - Bedroom 4: Room for an extra one! Bedroom 4
This room is on the first floor and has zip and link beds (super king or twin) and a single - great for a family with one child or for three friends sharing. The ensuite bathroom has a bath with overhead shower.
Sleeps 3. -
The Plough - Bedroom 5: Neutral tones give the room a restful ambience Bedroom 5
On the first floor, this room has zip and link beds (super king or twin) and an ensuite shower room.
Sleeps 2. -
The Plough - Bedroom 6: this one sleeps 3 and has room for an extra guest bed (extra charge) Bedroom 6
This is on the first floor and is another room that's ideal for families as it has zip and link beds (super king or twin) plus a single, and an ensuite shower room.
Optional: 1 extra guest bed (extra charge - see Extras)
Sleeps 3+1. -
The Plough - Bedroom 7: A well chosen F&B colour palette throughout Bedroom 7
This room is on the first floor and has zip and link beds (super king or twin) and an ensuite shower room.
Sleeps 2. -
The Plough - Bedroom 8: This ground floor room has a kingsize bed Bedroom 8
This room is on the ground floor; it has a king size bed and an ensuite shower room.
Sleeps 2. -
The Plough - Bedroom 9: Zip and link beds, so a superking or twins - it's up to you Bedroom 9
This room is on the ground floor and has zip and link beds (super king or twin) and an ensuite shower room.
Sleeps 2. -
The Plough - Bedroom 10: Another room that sleeps 3 Bedroom 10
This room is on the ground floor and has zip and link beds (super king or twin) and a single; it has an ensuite shower room.
Sleeps 3. -
The Plough - Bedroom 11: The bedrooms all have such a peaceful, uncluttered feel Bedroom 11
This room is on the ground floor. It has twin beds and an ensuite shower room.
Sleeps 2. -
The Plough: The Kitchen: Light, bright and spacious Kitchen
2 highchairs are available. If requested these will be left in the kitchen for you.
-
The Plough - Once the local pub, now stunning group accommodation for up to 29 Equipment
This property owner offers the following items. If required these can be selected while doing your bed configurations within your booking.
2 x Highchairs
3 x Travel Cots (age 2 yrs and under)