Pampering Extra Catering Extra All Hen Extras
Floor Plans
Rooms
-
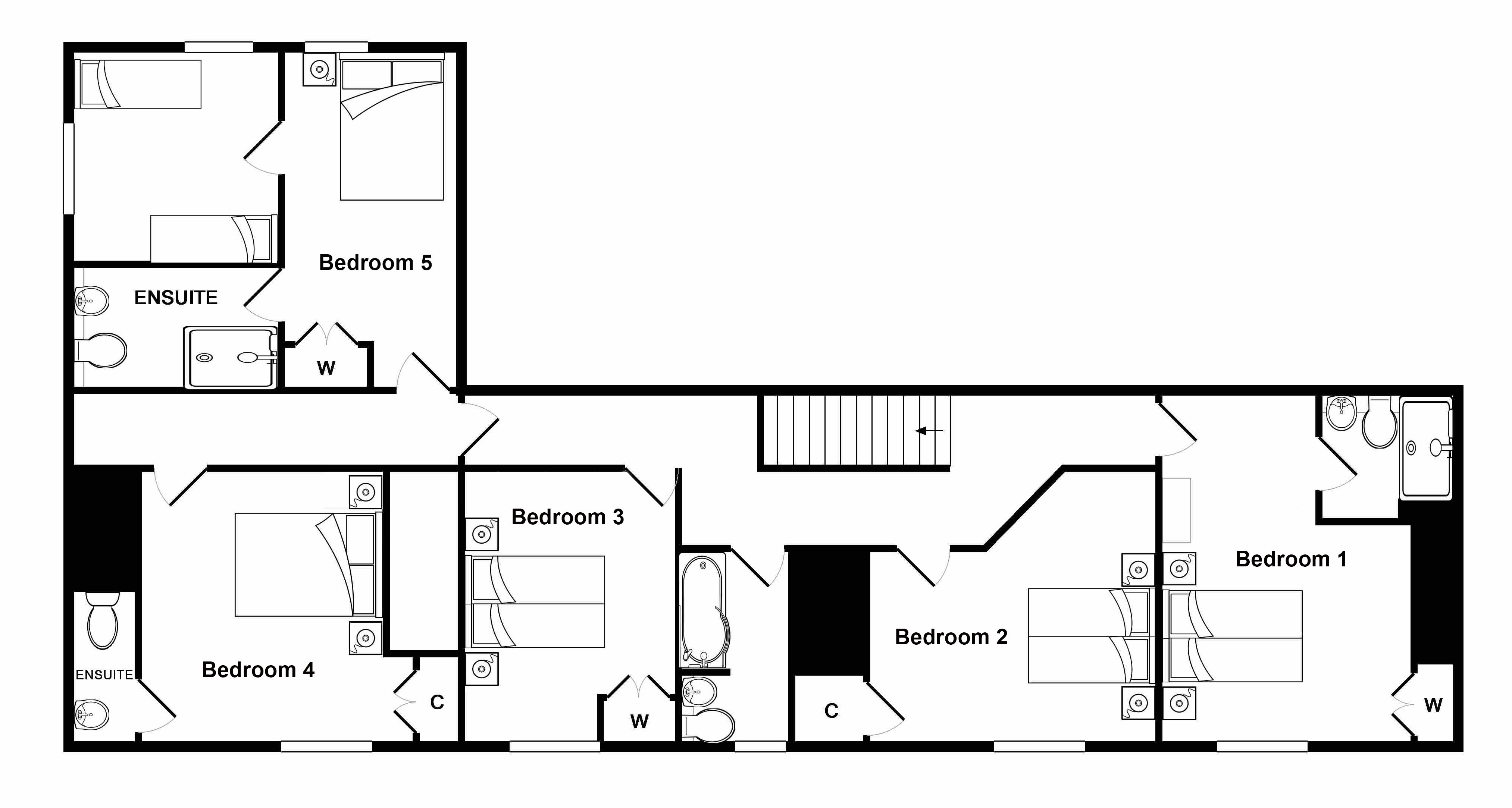
Whispering Thatch - Bedroom 1 has zip and links beds (super king or twin) and an ensuite shower room Bedroom 1
This room is on the first floor and has zip and link beds (super king or twin). It has an ensuite shower room.
Sleeps 2. -
Whispering Thatch - Bedroom 2: Zip and link beds (super king or twin), a lovely big window seat, old floorboards... Bedroom 2
This room is on the first floor and has zip and link beds (super king or twin). It has shared use of the family bathroom just along the landing.
Sleeps 2. -
Whispering Thatch - Bedroom 3: Zip and link beds super king or twin), a huge built in cupboard for your clothes, and country views Bedroom 3
This room is on the first floor and has zip and link beds (super king or twin). It has shared use of the family bathroom.
Sleeps 2. -
Whispering Thatch - Bedroom 4 has a super king bed and an ensuite WC Bedroom 4
This room is on the first floor and has a super king bed and use of the family bathroom.
Sleeps 2. -
Whispering Thatch - Bedroom 5 has two interconnecting rooms and an ensuite shower room - ideal for families Bedroom 5
This is a family suite on the first floor with two interlinking rooms, one a double, the other a twin. It has an ensuite shower room.
Sleeps 4. -
Whispering Thatch - Bedroom 6 is on the ground floor in the integral annexe and has French doors to the garden Bedroom 6
This room is on the ground floor in the integral annexe and has zip and link beds which can be a super king or twins, and an ensuite shower room.
Sleeps 2. -
Whispering Thatch - The kitchen is fresh and bright, evoking all the country feels Kitchen
2 highchairs are available. If requested these will be left in the kitchen or dining area for you.
-
Whispering Thatch - This gorgeous English country cottage has a private garden with a hot tub and play area Equipment
This property owner offers the following items. If required these can be selected while doing your bed configurations within your booking.
2 x Highchairs
2 x Travel Cots (age 2 yrs and under)