Pampering Extra Catering Extra All Hen Extras
Floor Plans
Rooms
-
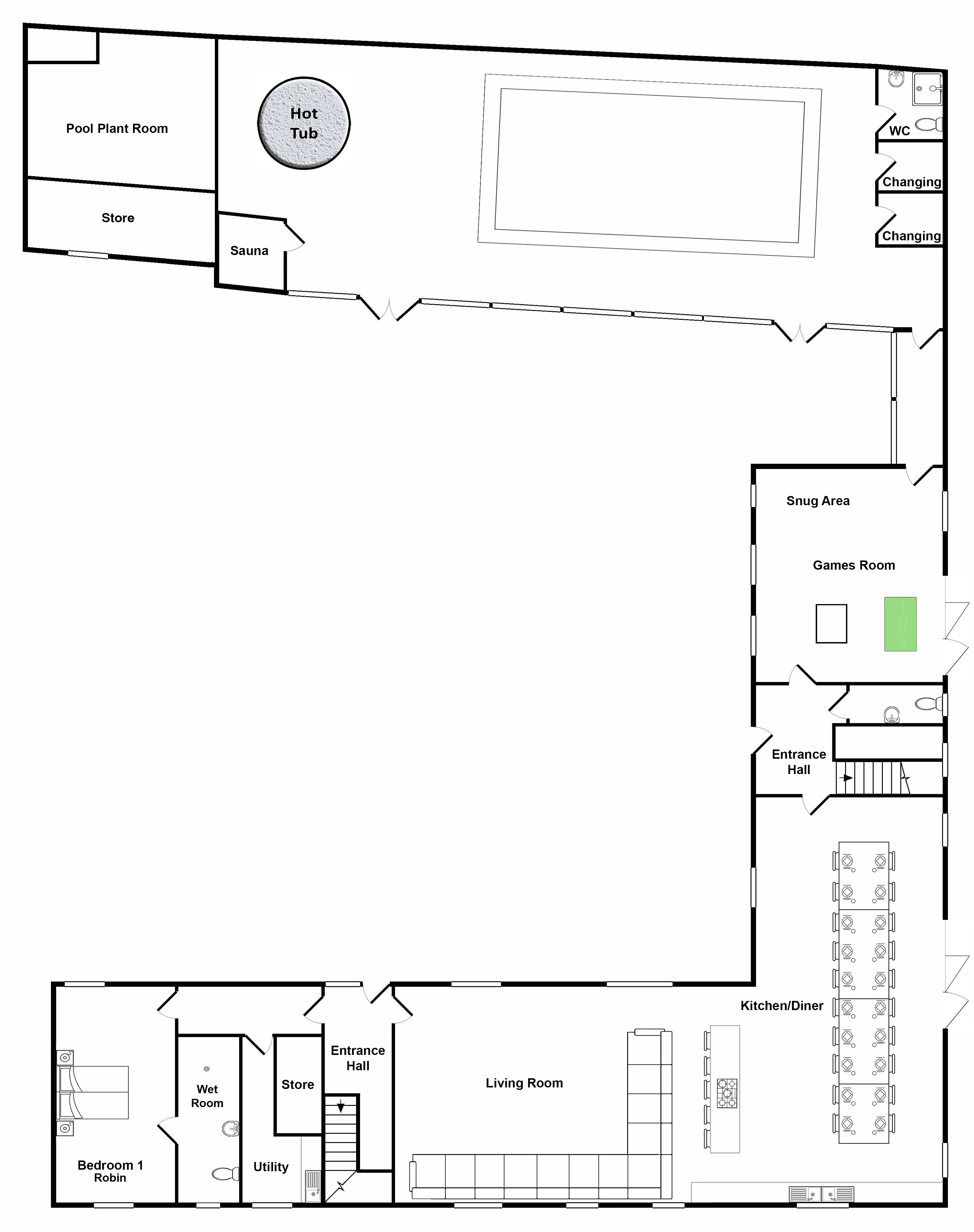
Croftview - Bedroom 1 (Robin): A ground floor room with an ensuite wet room Bedroom 1 (Robin)
An access friendly room on the ground floor with zip and link beds (super king or twin) and a large ensuite wet room.
Sleeps 2. -
Croftview - Bedroom 2 (Otter) is on the first floor and has an ensuite shower room Bedroom 2 (Otter)
A first floor room with zip and link beds (super king or twin) and an ensuite shower room.
Sleeps 2. -
Croftview - Bedroom 3 (Duck): On the first floor with an ensuite shower room Bedroom 3 (Duck)
A first floor room with zip and link beds (super king or twin) and an ensuite shower room.
Sleeps 2. -
Croftview - Bedroom 4 (Hedgehog): On the first floor with an ensuite shower room Bedroom 4 (Hedgehog)
A first floor room with zip and link beds (super king or twin) and an ensuite shower room.
Sleeps 2. -
Croftview - Bedroom 5 (Badger): On the first floor, with an ensuite shower room Bedroom 5 (Badger)
A first floor room with zip and link beds (super king or twin) and an ensuite shower room.
Sleeps 2. -
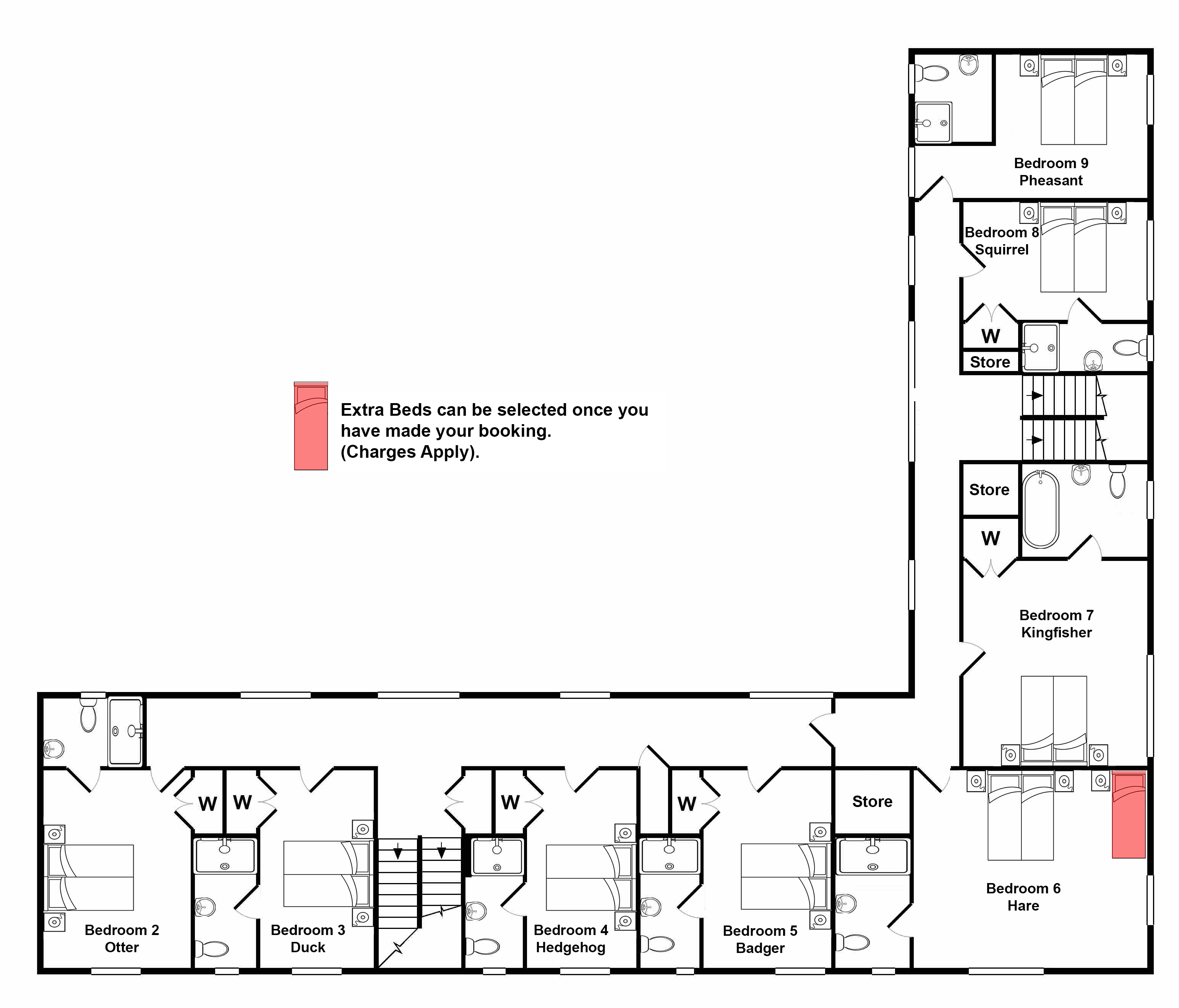
Croftview - Bedroom 6 (Hare): Room for an extra guest bed in this one! Bedroom 6 (Hare)
A first floor room with zip and link beds (super king or twin) and an ensuite shower room.
Optional: 1 extra guest bed at an additional charge (extra charge - see our Extras page).
Sleeps 2+1. -
Croftview - Bedroom 7 (Kingfisher) is on the first floor and has an ensuite bathroom Bedroom 7 (Kingfisher)
A first floor room with zip and link beds (super king or twin) and an ensuite bathroom with a bath and overhead shower.
Sleeps 2. -
Croftview - Bedroom 8 (Squirrel) is on the first floor and has an ensuite shower room Bedroom 8 (Squirrel)
A first floor room with zip and link beds (super king or twin) and an ensuite shower room.
Sleeps 2. -
Croftview - Bedroom 9 (Pheasant): Another first floor room Bedroom 9 (Pheasant)
A first floor room with zip and link beds (super king or twin) and an ensuite shower room.
Sleeps 2. -
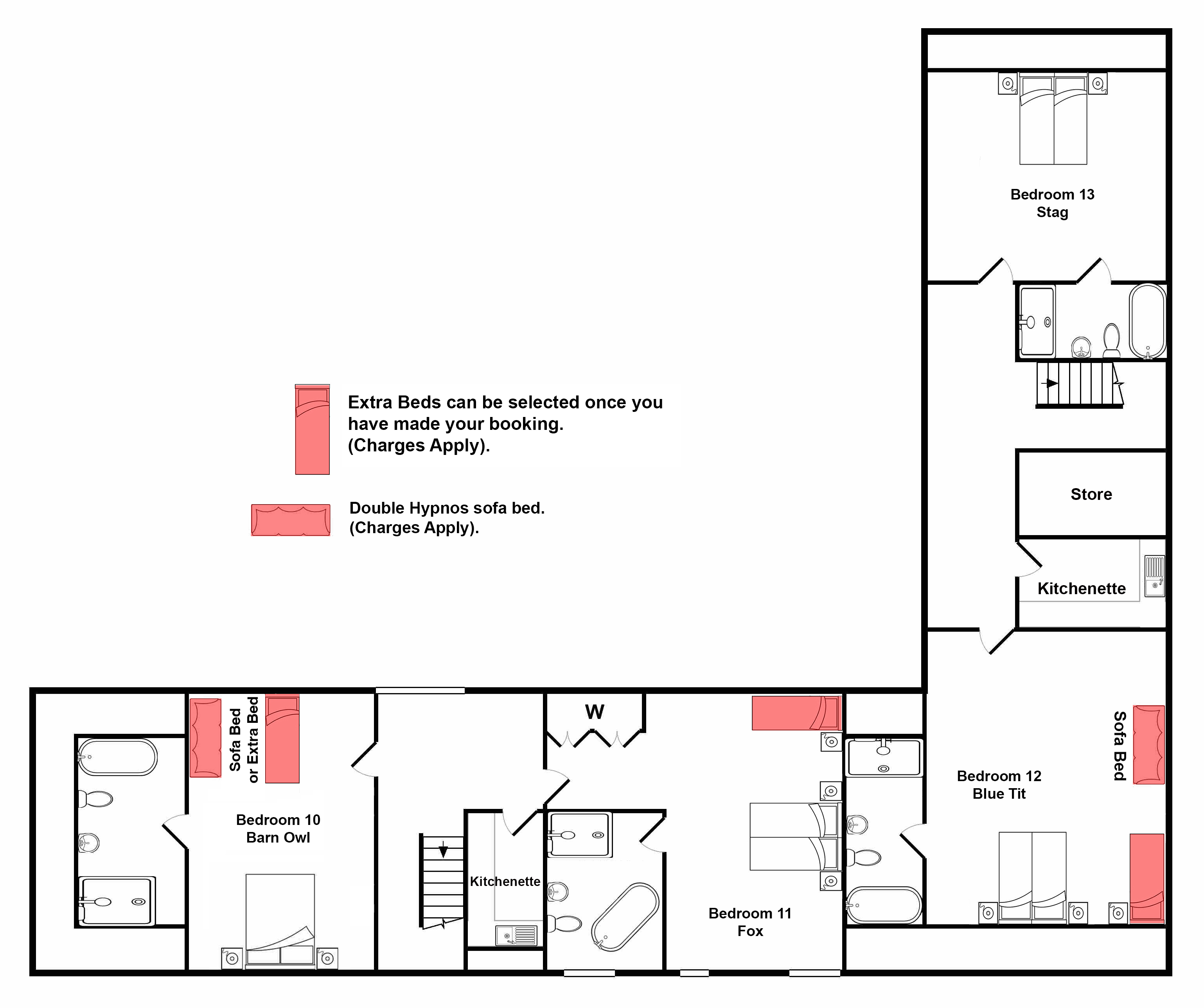
Croftview - Bedroom 10 (Barn Owl) is a second floor room with options for extra guest beds Bedroom 10 (Barn Owl)
A second floor room with a super king bed and an ensuite bathroom with a free standing bath and walk-in shower.
Optional: 1 extra guest bed or a sofa bed (a comfortable Hypnos double) at an extra charge per person (extra charge - see our Extras page).
Sleeps 2+2. -
Croftview - Bedroom 11 (Fox): Room for an extra guest bed in this second floor room Bedroom 11 (Fox)
A second floor room with zip and link beds (super king or twin) and an ensuite bathroom with a free standing bath and walk-in shower.
Optional: 1 extra guest bed at an additional charge (extra charge - see our Extras page).
Sleeps 2+1. -
Croftview - Bedroom 12 (Blue Tit): A second floor room that sleeps 2-5 Bedroom 12 (Blue Tit)
A second floor room with zip and link beds (super king or twin) and an ensuite bathroom with a free standing bath and walk-in shower.
Optional: 1 extra guest bed and a sofa bed (a comfortable Hypnos double) at an extra charge per person (extra charge - see our Extras page).
Sleeps 2+3 -
Croftview - Bedroom 13 (Stag): A second floor room with an ensuite bathroom Bedroom 13 (Stag)
A second floor room with zip and link beds (super king or twin) and an ensuite bathroom with a free standing bath and walk-in shower.
Sleeps 2. -
Croftview - Rustic meets modern in the open plan living space Kitchen
2 highchairs are available. If requested these will be left in the kitchen.
-
Croftview - Group accommodation with a private indoor pool Equipment
This property owner offers the following items. If required these can be selected while doing your bed configurations within your booking.
2 x Travel Cots (age 2 yrs and under)
2 x Highchairs
1 x Wheelchair Ramp (entrance)
1 x Shower Stool (Bedroom 1 ensuite).