Pampering Extra Catering Extra All Hen Extras
Floor Plans
Rooms
-
Crowcombe: Bedroom 1 is on the ground floor and has an ensuite shower room Bedroom 1
A ground floor room with zip and link beds (super king or twin) and an ensuite shower room.
Sleeps 2. -
Crowcombe: Bedroom 2 - on the ground floor with an ensuite shower room Bedroom 2
A ground floor room with zip and link beds (super king or twin) and an ensuite shower room.
Sleeps 2. -
Crowcombe: Bedroom 3 is on the ground floor and has an ensuite bathroom Bedroom 3
A ground floor room with zip and link beds (super king or twin) and an ensuite bathroom with a bath and overhead shower.
Sleeps 2. -
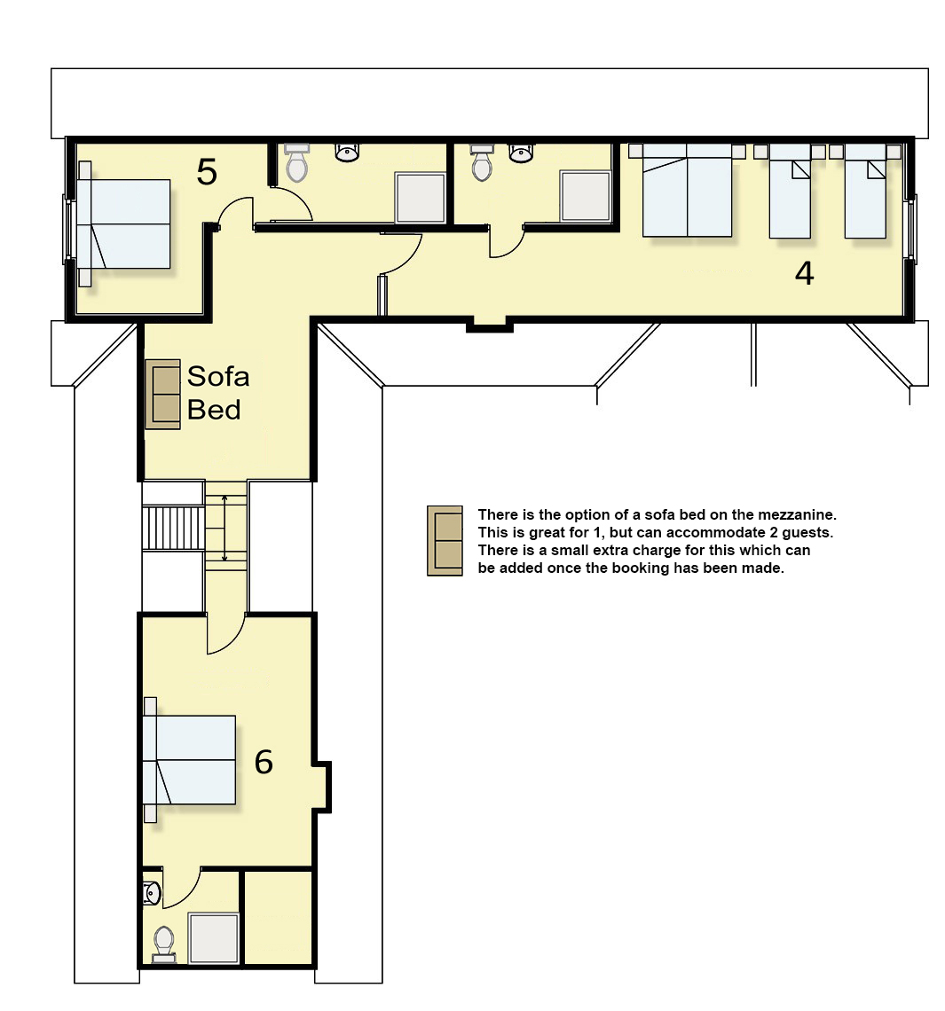
Crowcombe: Bedroom 4 is a great room for a family as it sleep 4 Bedroom 4
A first floor room with an ensuite shower room. Beds can be 2 super kings, a super king and 2 singles, or 4 singles.
Sleeps 4. -
Crowcombe: Bedroom 5 is on the first floor and has an ensuite shower room Bedroom 5
A first floor room with zip and link beds (super king or twin) and an ensuite shower room.
Sleeps 2. -
Crowcombe: Bedroom 6 is on the first floor and has an ensuite shower room Bedroom 6
A first floor room with zip and link beds (super king or twin) and an ensuite shower room.
Sleeps 2. -
Crowcombe: The pool table is on the mezzanine landing Mezzanine
Optional: 1 extra guest can be accommodated on a sofa bed at a small additional charge (extra charge - see our Extras page).
Sleeps 1. -
Crowcombe: The kitchen is crisp and modern, equipped with all you need for your stay Kitchen
2 highchairs are available. If requested these will be left in the kitchen or dining area for you.
-
Crowcombe: Holiday lodge sleeps 14+ 1 with a private indoor pool Equipment
This property owner offers the following items. If required these can be selected while doing your bed configurations within your booking.
2 x Highchairs
2 x Travel Cots (age 2 yrs and under)
2 x Toddler Beds (age 4 yrs and under).