Pampering Extra Catering Extra All Hen Extras
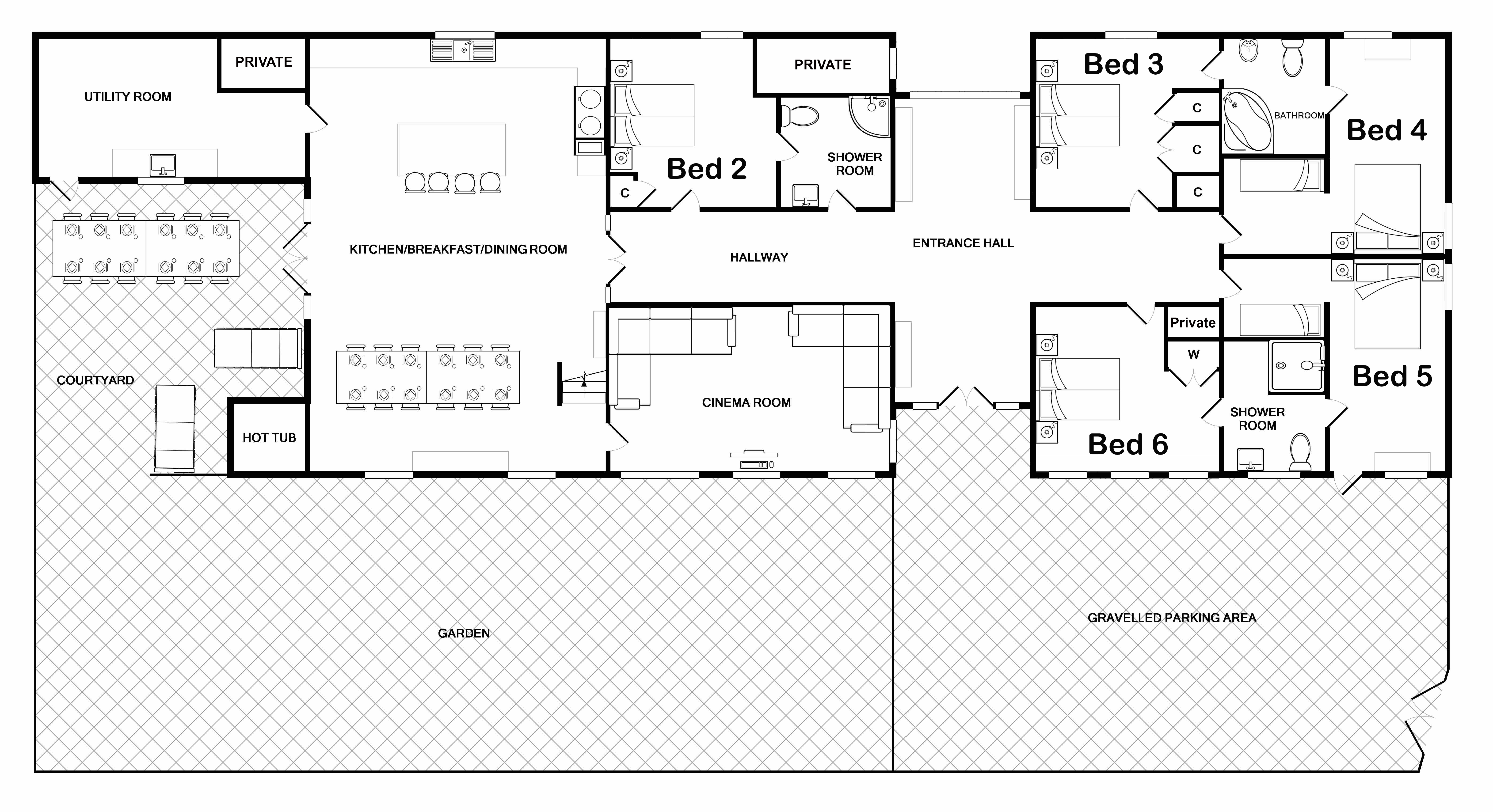
Floor Plans
Rooms
-
Dustings - Bedroom 1 is perfect for families as it can sleep 4 people Bedroom 1
A first floor room that's ideal for families with the option of a super king bed and 2 singles, 4 singles, a super king only or 2 singles only. It has an ensuite wet room.
Sleeps 4. -
Dustings - Bedroom 2 has zip and link beds Bedroom 2
A ground floor room with zip and link beds (super king or twin) and an ensuite shower room which can also be accessed from the hallway.
Sleeps 2. -
Dustings - Bedroom 3, on the ground floor, with zip and link beds Bedroom 3
A ground floor room with zip and link beds (super king or twin) and direct access to a Jack and Jill bathroom shared with Bedroom 4.
Sleeps 2. -
Dustings - Bedroom 4 has a superking bed and a single Bedroom 4
A ground floor room with a king size bed and a single. It has direct access to a Jack and Jill bathroom shared with Bedroom 3.
Sleeps 3. -
Dustings - Bedroom 5 shares a shower room with Bedroom 6 Bedroom 5
A ground floor room with a king size bed and a single. It has direct access to a Jack and Jill shower room shared with Bedroom 6.
Sleeps 3. -
Dustings - Bedroom 6 has zip and link beds, so a superking or twins Bedroom 6
A ground floor room with zip and link beds (super king or twin) and direct access to a Jack and Jill shower room shared with Bedroom 5.
Sleeps 2. -
Dustings - A well equipped farmhouse kitchen - all geared up for cooking for large groups Kitchen
2 highchairs are available. These will be left for you in the dining area if required.
-
Dustings - Surrounded by the beautiful Somerset countryside Equipment
This property owner offers the following items. If required these can be selected when you do your bed configurations within your booking.
2 x Highchairs
2 x Travel Cots (age 2 yrs and under)
2 x Toddler Beds (age 4 yrs and under)