Pampering Extra Catering Extra All Hen Extras
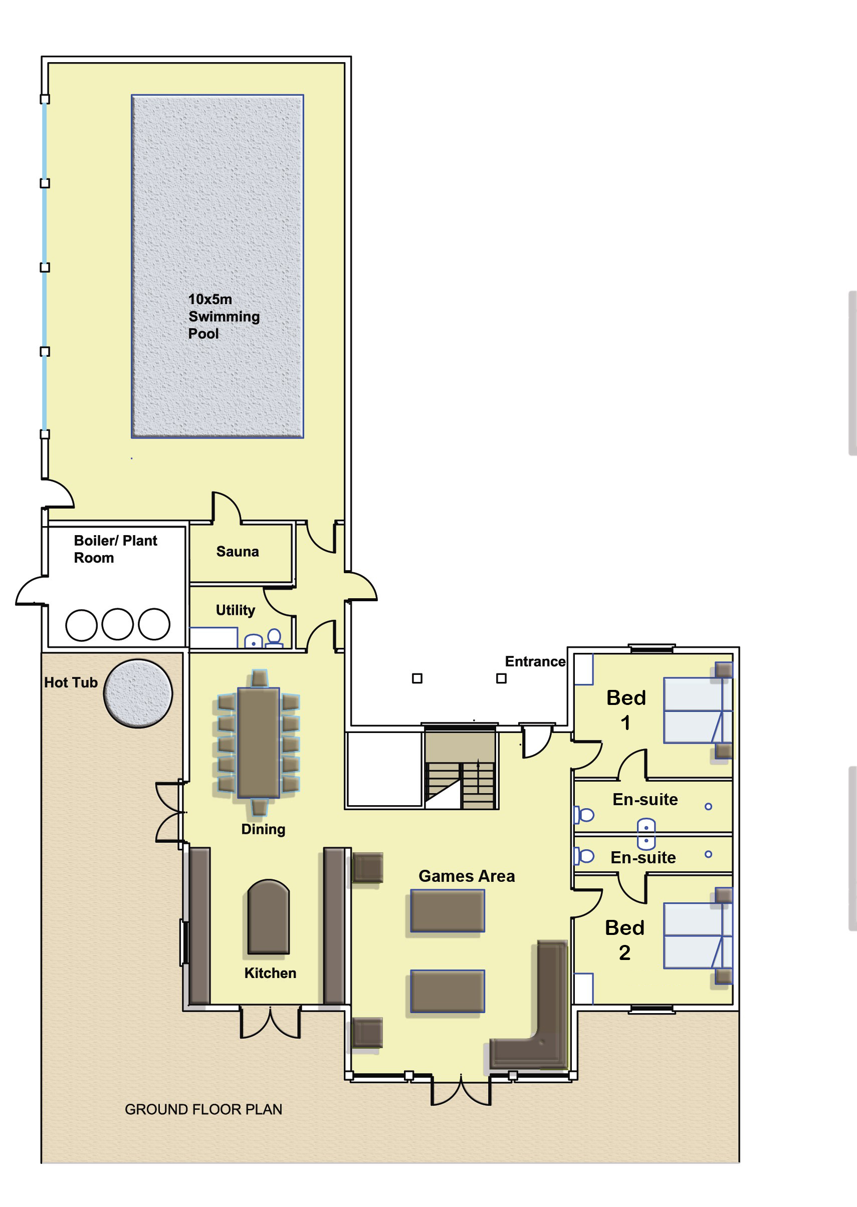
Floor Plans
Rooms
-
Fuzzy Orchard - Bedroom 1: Access friendly on the ground floor, zip and link beds (super king or twin) and an ensuite wet room Bedroom 1
An access friendly room on the ground floor with zip and link beds (super king or twin) and an ensuite wet room (please let us know if you require an assisted shower chair).
Sleeps 2. -
Fuzzy Orchard - Bedroom 2 has zip and link beds and an ensuite wet room Bedroom 2
An access friendly room on the ground floor with zip and link beds (super king or twin) and an ensuite wet room (please let us know if you require an assisted shower chair).
Sleeps 2. -
Fuzzy Orchard - Bedroom 3 has room for an extra guest bed (additional charge) Bedroom 3
A first floor room with zip and link beds (super king or twin) and an ensuite bathroom with a free standing bath, wet area and TV.
Optional: 1 extra guest bed at an additional charge (extra charge - see our Extras page).
Sleeps 2+1. -
Fuzzy Orchard - Bedroom 4 has zip and link beds and an ensuite wet room Bedroom 4
A first floor room with zip and link beds (super king or twin) and an ensuite wet room.
Sleeps 2. -
Fuzzy Orchard - Bedroom 5 can sleep 3 and has an ensuite bathroom Bedroom 5
A first floor room with zip and link beds (super king or twin) and an ensuite bathroom with a free standing bath, wet area and TV.
Optional: 1 extra guest bed at an additional charge (extra charge - see our Extras page). -
Fuzzy Orchard - Bedroom 6 has zip and link beds and an ensuite wet room Bedroom 6
A first floor room with zip and ink beds (super king or twin) and an ensuite wet room.
Sleeps 2. -
Fuzzy Orchard - This is such a sociable space - you'll even have your own cocktail bar! Kitchen
2 highchairs are available. If requested these will be left for you in the kitchen or dining area.
-
Fuzzy Orchard - Relax in the hot tub, pull the cover over you if it's a little chilly Equipment
This property owner offers the following items. If required these can be selected while doing your bed configurations within your booking.
2 x Highchairs
2 x Full Size Cots (age 2 yrs and under)
1 x Shower Chair
1 x Wheelchair Ramp