Pampering Extra Catering Extra All Hen Extras
Floor Plans
Rooms
-
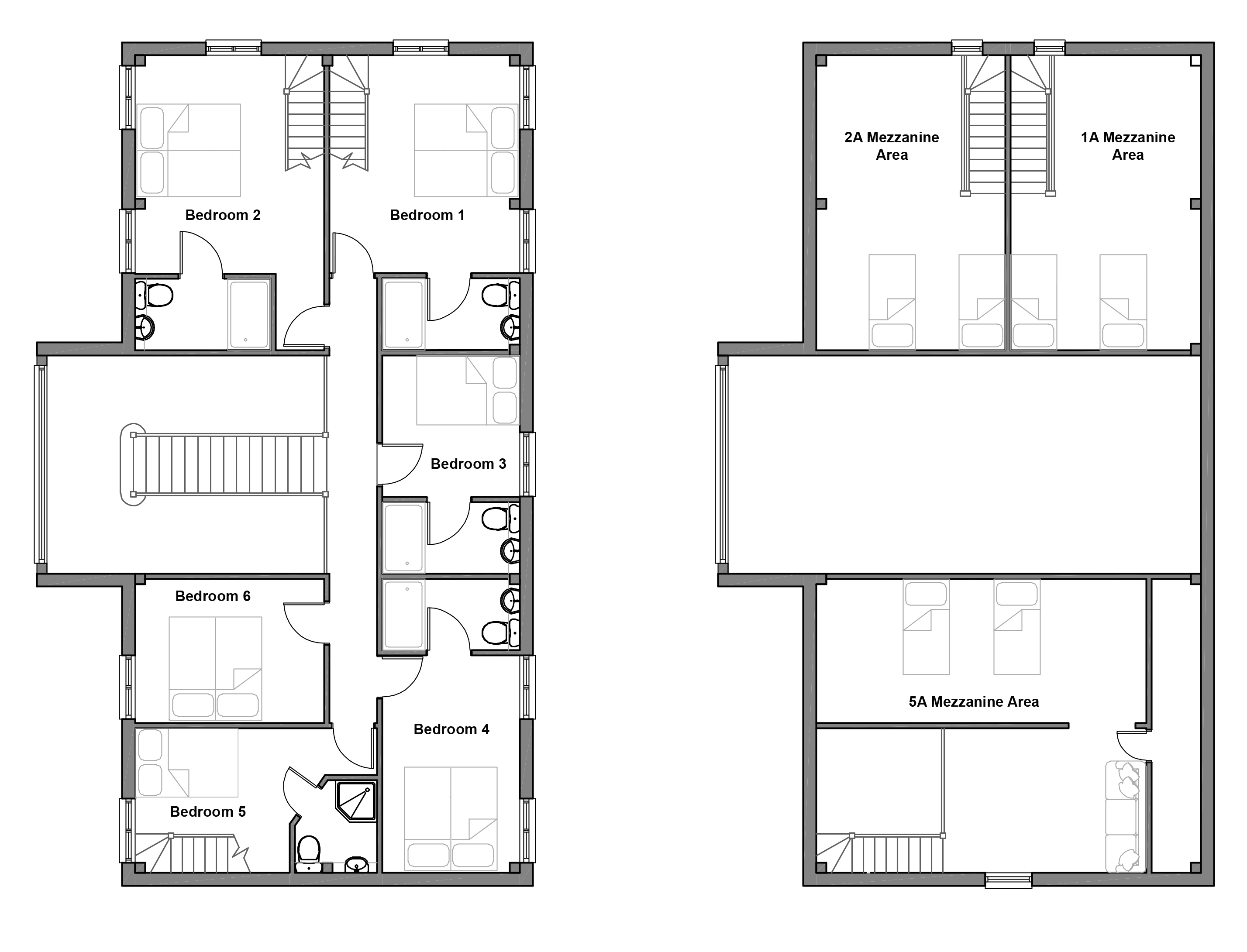
Jollyoaks - Bedroom 1: Zip and link beds (king size or twin) and two singles on the mezzanine Bedroom 1
This room has zip and link beds (king size or twin) and two singles on the mezzanine. There is an ensuite shower room.
Sleeps 4 -
Jollyoaks - Bedroom 2: Zip and link beds (king size or twin), two singles on the mezzanine and an ensuite shower room Bedroom 2
This room has zip and link beds (king size or twin) and two singles on the mezzanine. There is an ensuite shower room.
Sleeps 4 -
Jollyoaks - Bedroom 3: A king size bed and an ensuite shower room Bedroom 3
This room has a king size bed and an ensuite shower room. The bed is against the wall on one side.
Sleeps 2 -
Jollyoaks - Bedroom 4: King size or twin and an ensuite shower room Bedroom 4
This room has zip and link beds (king size or twin) and an ensuite shower room.
Sleeps 2 -
Jollyoaks - Bedroom 5: A Small double bed, 2 singles on the mezzanine and an ensuite shower room Bedroom 5
This room has a small double bed and on the mezzanine, two single beds. There is an ensuite shower room.
Sleeps 4 -
Jollyoaks - Bedroom 6 has zip and link beds (king size or twin) Bedroom 6
This room has zip and link beds (king size or twin).
Sleeps 2 -
Jollyoaks - To one side of the open plan living space there's a very stylish kitchen Kitchen
If required, high chairs will be left for you in the kitchen or dining area.
-
We don't have an image of this room just yet, sorry. Equipment
This property owner offers the following items. If required these can be selected while doing your bed configurations within your booking.
2 x Highchairs
2 x Travel Cots (age 2 yrs and under)