Pampering Extra Catering Extra All Hen Extras
Rooms
-
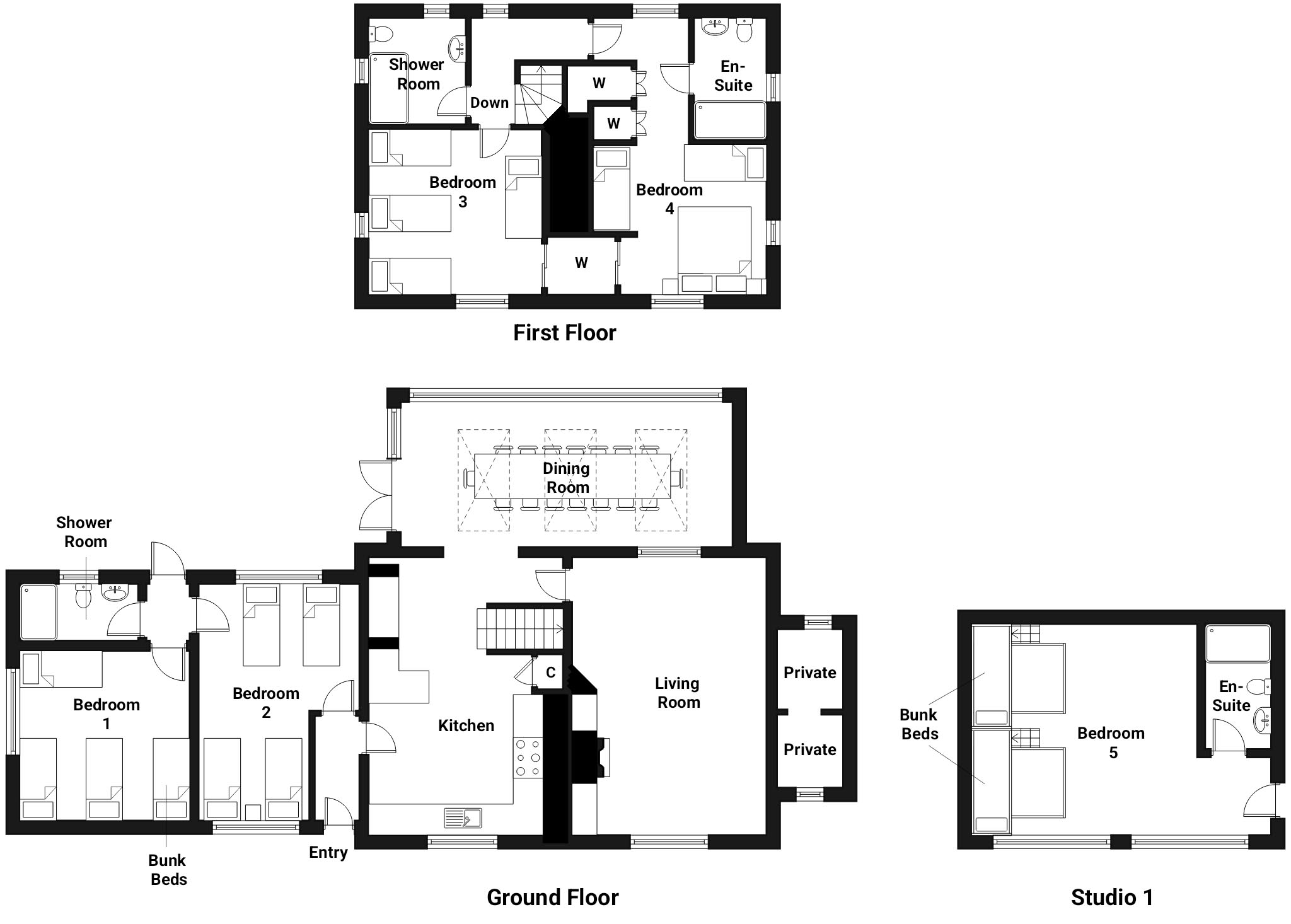
Lively Lodge - Bedroom 1 sleeps 4 on the ground floor (this room now has 2 single beds and bunk beds) Bedroom 1
On the ground floor, two single beds and bunk beds. Shower room shared with Bedroom 2.
Sleeps 4 -
Lively Lodge - Bedroom 2 sleeps 4 on the ground floor (this room now has 4 single beds) Bedroom 2
On the ground floor, 4 single beds. Shower room shared with Bedroom 1.
Sleeps 4 -
Lively Lodge - Bedroom 3 sleeps 4 Bedroom 3
On the first floor, 4 single beds. Adjacent shower room.
Sleeps 4 -
Lively Lodge - Bedroom 4 sleeps 4 Bedroom 4
On the first floor, king size bed and 2 singles, ensuite shower room.
Sleeps 4 -
Lively Lodge -Bedroom 5 sleeps 6 Bedroom 5
This room is in The Studio and has 2 king size beds with a single bunk above each. There is an adjacent shower room.
Sleeps 6 -
We don't have an image of this room just yet, sorry. Bedroom 6
In The Hideaway, king size bed. Adjacent shower room.
Sleeps 2