Pampering Extra Catering Extra All Hen Extras
Rooms
-
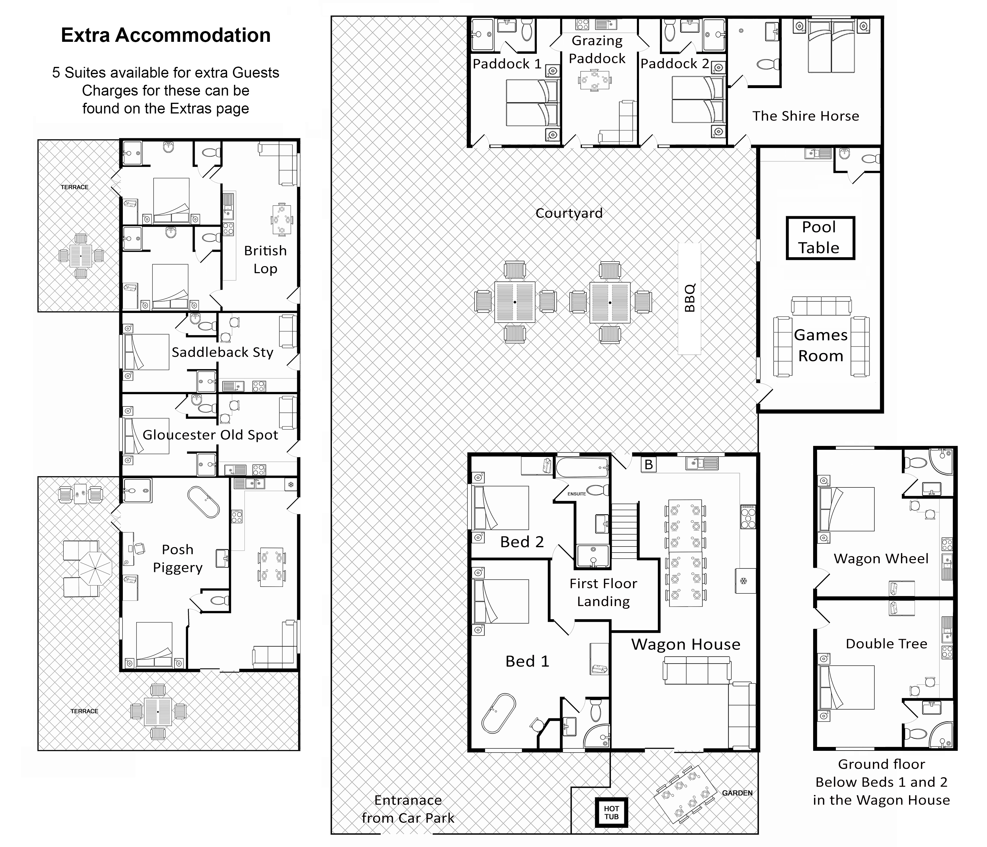
Quantock Barns - The Wagon House: Bedroom 1 has a king size bed, an in-room bath, and an ensuite shower room Wagon House Bedroom 1
This room is on the first floor in the Wagon House. It has a super king bed, a free standing roll top bath within the bedroom, and an ensuite shower room.
Sleeps 2. -
Quantock Barns - The Wagon House: Bedroom 2 has a super king bed and an ensuite bathroom Wagon House Bedroom 2
This room is on the first floor in the Wagon House. It has a super king bed and ensuite bathroom with a spa bath and separate shower.
Sleeps 2. -
Quantock Barns - Wagon Wheel is a ground floor suite with a super king bed, an ensuite shower room and a kitchen area Wagon Wheel
This is a self contained ground floor bedroom with a super king bed and has an ensuite shower room. There are also kitchen facilities and a table and chairs for 2.
Sleeps 2. -
Quantock Barns - Double Tree is a ground floor suite with a super king bed, an ensuite shower room and a kitchen area Double Tree
This is a self contained ground floor bedroom with a super king bed and has an ensuite shower room. There are also kitchen facilities and a table and chairs for 2.
Sleeps 2. -
Quantock Barns - Shire Horse can have a super king or twin beds The Shire Horse
This is a self contained ground floor room with zip and link beds that can be arranged as a super king or twins. There is an ensuite wet room.
Sleeps 2. -
Quantock Barns - Paddock 1 is a ground floor suite which can have a superking or twin beds; it has an en suite shower room and shares the Grazing Paddock with Paddock 2 Paddock 1
This is a ground floor bedroom that has zip and link beds (super king or twin) and an ensuite shower room. This room shares the kitchen/dining/living space in the Grazing Paddock with Paddock 2.
Sleeps 2. -
Quantock Barns - Paddock 2 is a ground floor suite which has shared use of the Grazing Paddock with Paddock 1. With an en suite shower room, Paddock 2 can be configured with a superking or twin beds Paddock 2
This is a ground floor room with zip and link beds (super king or twin) and an ensuite shower room. This room shares the kitchen/dining/living space in the Grazing Paddock with Paddock 2.
Sleeps 2. -
Quantock Barns - The Grazing Paddock is a shared living space accessed via Paddock 1 and Paddock 2; it has comfy seating, a kitchenette, and a table and chairs for 4 The Grazing Paddock
This is a shared open plan kitchen/dining/living space shared between Paddock 1 and Paddock 2, with both rooms having direct access to it.
-
Quantock Barns - The Wagon House: The dining area and kitchen to one end of the open plan living space Kitchen
2 highchairs are available. If requested these will be left for you in the kitchen or dining area.
-
Quantock Barns - The hot tub is in the courtyard at the back of The Wagon House Equipment
This property owner offers the following items. If required these can be selected while doing your bed configurations within your booking.
3 Travel Cots
2 Highchairs
1 Shower Chair
1 Wheelchair Ramp -
Quantock Barns - The Posh Piggery (extra charge) has a gorgeous freestanding bath as well as a separate shower and WC Posh Piggery (Extra Charge)
This is a self contained suite accessed from the central courtyard (extra charge - see Extras). It has a super king bed, a free standing bath, a walk-in shower and WC. There is an open plan kitchen/dining/living room and a private patio.
Sleeps 2 -
Quantock Barns - Gloucester Old Spot is available at an extra charge. It has a superking size bed and open plan living area with kitchen, sofa, table and chairs Gloucester Old Spot (Extra Charge)
This is a self contained suite accessed from the central courtyard (extra charge - see Extras). It has a super king bed and an ensuite shower room. There is a small open plan kitchen/dining/living room.
Sleeps 2 -
Quantock Barns - Saddleback Sty is available at an extra charge. It has a superking size bed and an open plan living area with kitchen, sofa, table and chairs Saddleback Sty (Extra Charge)
This is a self contained suite accessed from the central courtyard (extra charge - see Extras). It has a super king bed and an ensuite shower room. There is a small open plan kitchen/dining/living space.
Sleeps 2 -
Quantock Barns - British Lop is available at an extra charge. Both bedrooms are en suite and one has French doors opening onto a patio British Lop (Extra Charge)
This is a self contained suite accessed from the central courtyard (extra charge - see Extras). It has 2 bedrooms with super king beds and ensuite shower rooms. There is an open plan kitchen/dining/living space.
Sleeps 4