Pampering Extra Catering Extra All Hen Extras
Floor Plans
Rooms
-
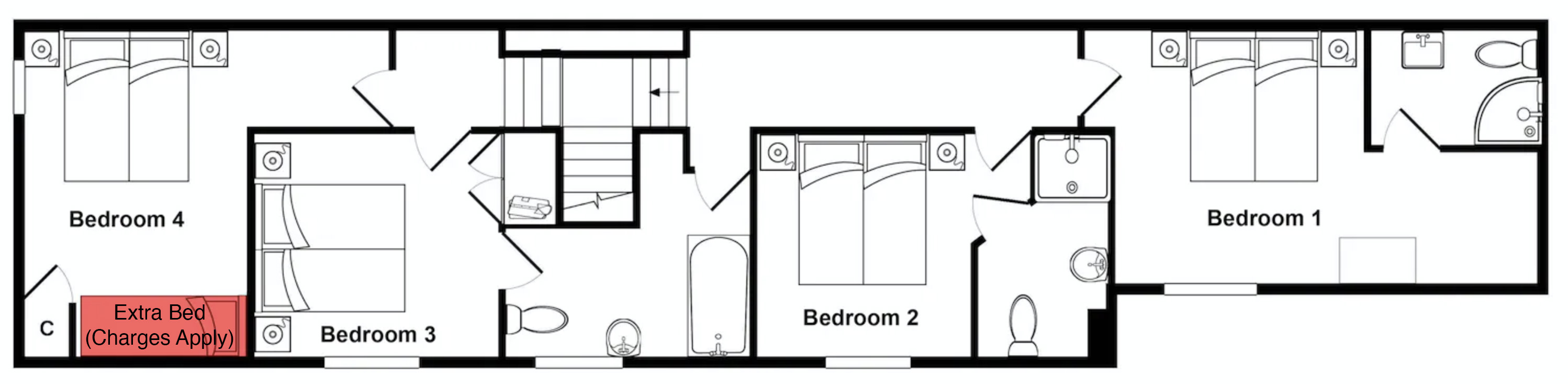
Willowhayes - Bedroom 1: Super king or twin Bedroom 1
A first floor room with zip and link beds (super king or twin) and an ensuite shower room.
Sleeps 2. -
Willowhayes - Bedroom 2: Super king or twin Bedroom 2
This is on the first floor and can be a super king or twin room. It has an ensuite shower room.
Sleeps 2. -
Willowhayes - Bedroom 3 can be a super king or twin room Bedroom 3
This is a first floor room that can have a super king or twin beds. It shares a bathroom with Bedroom 4.
Sleeps 2. -
Willowhayes - Bedroom 4: Sleeps 2, with an extra single bed available (extra charge) Bedroom 4
This is on the first floor and can have a super king or twin beds. It shares a bathroom with Bedroom 3.
Optional: 1 single bed (extra charge - see Extras)
Sleeps 2+1. -
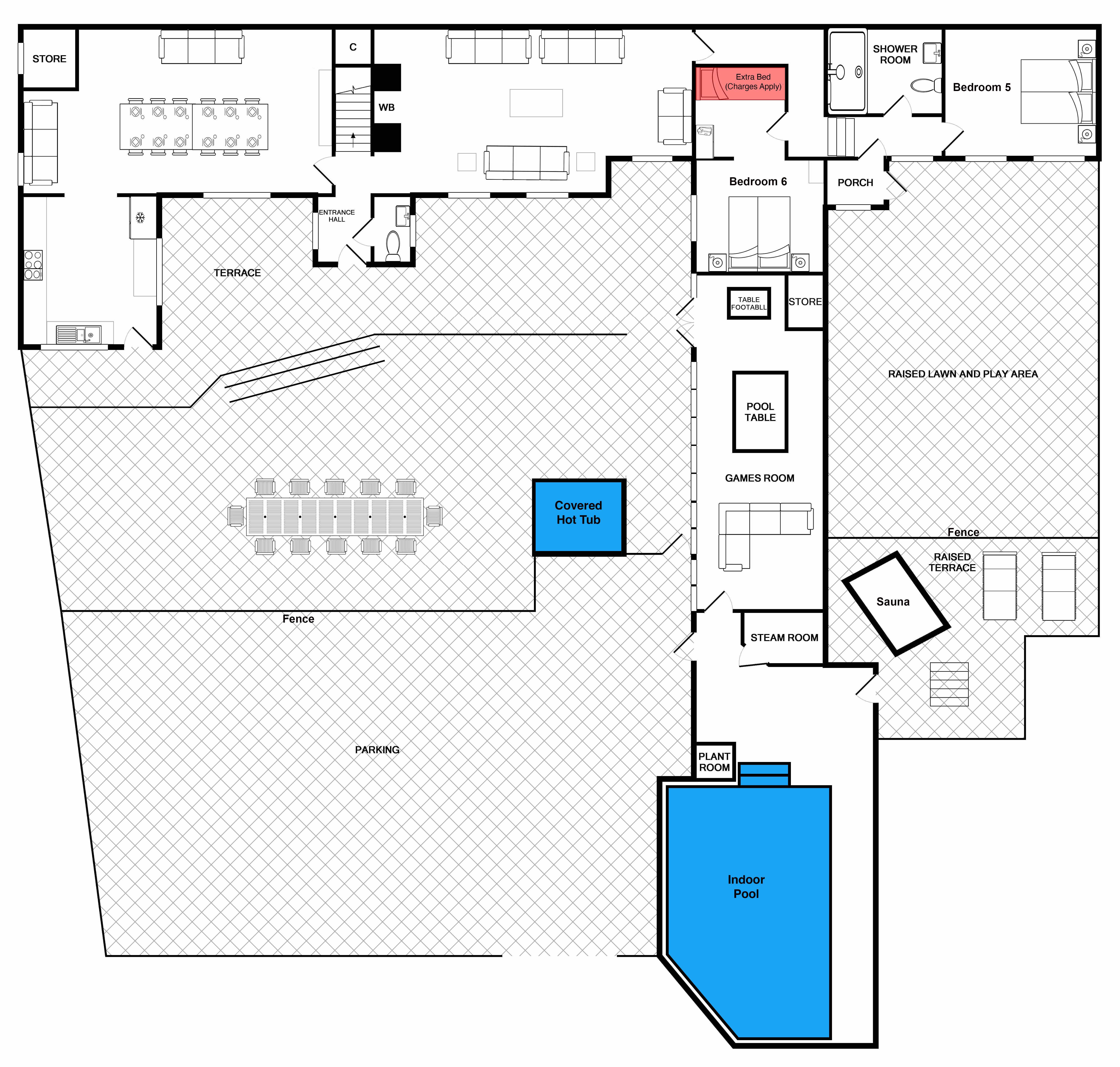
Willowhayes - Bedroom 5: Super king or twin Bedroom 5
This is a ground floor room that can have a super king or twin beds. It shares a shower room with Bedroom 6.
Sleeps 2 -
Willowhayes - Bedroom 6 sleeps 2 and has an extra single bed available (extra charge) Bedroom 6
This is a ground floor room that can have a super king or twin beds. It shares a shower room with Bedroom 5.
Optional: 1 single bed (extra charge - see Extras)
Sleeps 2+1. -
Willowhayes - The dining room Dining Room
2 highchairs are available. If requested these will be left in the dining room for you.
-
Willowhayes - Dine alfresco in the front courtyard Equipment
This property owner offers the following items. If required these can be selected while doing your bed configurations within your booking.
2 x Highchairs
2 x Travel Cots (age 2 yrs and under)
2 x Changing Mats
2 x Bed Guards
1 x Floor Standing Fan
1 x Tablecloth
12 x Napkins